清新舒适的现代风是最受年轻一族追捧的装修风格,装修工序简单,软装材料选择空间也很大,最迷人之处在于时尚且实用。下面这篇案例告诉你如何把60㎡房屋,打造成现代惬意轻松的悠然之家。
房屋信息:
户型:一室一厅一卫
风格:现代风
房屋面积:60㎡
装修预算:10万
屋主信息:
张女士是位80后,在北京是一位时髦的公司白领,平常自己一个人住,家里还有宠物小狗,由于没有太多时间顾及家里装修,在这个寸土寸金的城市,省到就是赚到,设计师为她精心打造了一个现代风格的家,各功能齐全,不仅仅是一个休憩之所,更是对美好生活态度的一种展现。
屋主需求:
1. 要求家里“厨卫储”功能齐全,视觉上不要显得拥挤、狭小。
2. 尽可能开发每一处可用的空间,有一个宠物狗的小窝。
3. 衣物及配饰较多,需要有独立衣帽间
4. 希望可以隔出单独分隔出马桶间
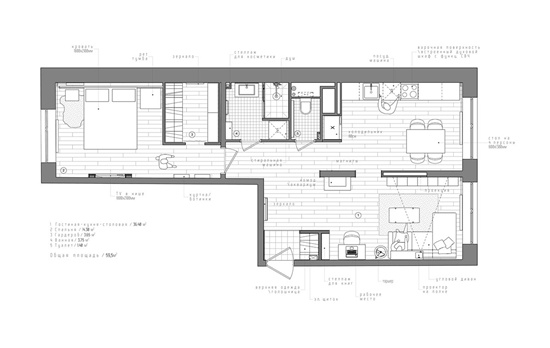
户型图
因户型本身没有单独玄关,故在进门处设计了无门衣帽柜来体现玄关空间感,衣帽柜空间较大,即使冬天厚重的大衣或者羽绒服挂在这里都不会觉得拥挤;
上层可以放置帽子,最底层可以放几双近期频繁更换的鞋子,出门前的搭配简单流畅。
玄关衣帽架的背面设计了书架,可以摆放很多数量的书籍,搭配旁边的写字台满足了房主看书和写日记的日常习惯,整体搭配既实用又省空间。
浅灰色布艺沙发是现代风中必备家具,简单舒适的同时,又能提高整体家居品位。搭配原木纹理木质家具,清新自然。
客厅整体颜色为淡色系,白色墙面搭配简单挂饰,明亮干净。
古语云“开门见灶,钱财多耗”,为了避免开门后看到厨房,设计师巧设玄关墙,与客厅背景墙平齐,之间还留出空间,消除了小面积户型的压迫感和封闭感,增加了对厨房和卫生间的隐蔽性。
南向客厅,窗户面积够大,楼层够高,采光足够,所以采用无主灯设计,使室内整体更加简洁干净,视觉上举架更高。
玄关墙前面放置细腿木质储藏柜,复古吊灯、鱼缸摆放也是恰到好处,象征着财富源源不断,生活富足有余,符合女主人都市白领的形象。
为满足房主对于厨房干净明亮的要求,橱柜设计为钢琴烤漆面的纯白色,与墙体统一的颜色看上去更加整洁;
利用墙体安排嵌入式冰箱,省空间,使厨房整体布局也显得更加规整。
餐区设计在厨房内部,餐桌餐椅黑白搭配,墙面壁纸选择了灰蓝色调的规则印花图案,是整套装修中不多的彩色装饰的点缀部分,让用餐时光变的生动有趣。
窄面的隔断墙增加了小巧妙的设计,随手的涂鸦,最近的照片,简单的备忘录,随心随性。
与地板相同浅色床头设计会让整个卧室感觉更加清爽干净,墙面的空调外框也让空调不会显得突兀与单调。线条感的木质床头柜,美观时尚,方便打理。
浅绿色床头柜给整个卧室增添了一点生动的气息,桌面置物,桌下还可以安排心爱的宠物夜晚陪睡。
卧室的电视背景墙也做了与床头及玄关处统一元素的设计,提升了墙面整体现代风格,让单色墙面也不再那么单调。
卧室格局为长条形,进门右手边做出小隔间,既使得卧室空间不至于太过狭长,又满足了房主对衣帽间的需求。
衣帽间空间虽然不大,但是最大限度的安排了两侧全部面积的储物空间,中间过道,可以清楚查看衣物位置,转身空间也不局促。
虽然60米的空间设计,既要安排衣帽间,又要卫生间干湿分离本身是很难实现的,但是经过精心的设计安排,还是帮屋主实现了最初的要求,独立空间的马桶位,确实是很奢侈了。
卫生间墙面地面,尽管只是采用了简单的黑白色搭配,但是立体感的瓷砖让整体感觉不再单调。
极简风的柜子搭配台上盆,好打理又很实用。
单独的淋浴区安装了推拉式玻璃屏,这是一个爱干净女士的标配之一,不必担心水花四溅,尽情享受洗澡的放松时刻。
小户型的房子装修心得:
1. 避免体积过大的家具的同时,也要避免太多装饰品,否则会显得凌乱、空间局促。
2. 浅色调为主,整体空间显得更加宽敞明亮。
3. 空间尽量减少密闭空间,选择开敞、通透的设计,这样可以给人一种放松自由的感觉。







